PCW
Aluminium
MB 45
MB 60
MB 70 / MB 70 HI
MB 77 HS
MB 78EI Drzwi i przegrody przeciwpożarowe
MB 86
Szklenie
Okucia
Dodatki okienne
Drzwi
 Jesteś w: Oferta » Aluminium » MB 78EI Drzwi i przegrody przeciwpożarowe

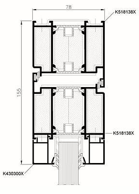
MB 78EI Drzwi i przegrody przeciwpożarowe

System ścianek przeciwpożarowych MB-78 EI służy do wykonywania wewnętrznych lub zewnętrznych przegród przeciwpożarowych z drzwiami jedno i dwuskrzydłowymi o klasie odporności ogniowej EI15, EI30, EI45 lub EI60, według normy PN-EN 13501-2+A1:2010. Jest w dużym stopniu kompatybilny ze standardowymi systemami okienno-drzwiowymi firmy ALUPROF S.A. - MB-45, MB-60 i MB-70 (posiadają one wspólne kształtowniki, detale, okucia, obróbki, itd.).

Konstrukcja systemu MB-78 EI oparta jest o profile aluminiowe z przekładką termiczną. Głębokość konstrukcyjna kształtowników wynosi: 78 mm. Profile charakteryzują się niską wartością współczynnika przenikania ciepła U dzięki zastosowaniu m.in. specjalnych profilowanych przekładek termicznych o szerokości 34 mm. System umożliwia zastosowanie wszystkich typowych szyb ognioodpornych odpowiednich klas (grubość wypełnień od 13 do 49 mm). W jego ramach można też uzyskać konstrukcje dymoszczelne w kilku wariantach wykonania. Badania przeprowadzone w Instytucie Techniki Budowlanej w Warszawie dowiodły także, że wyroby wykonane z tego systemu charakteryzują się również bardzo dobrą izolacyjnością akustyczną (do 40 dB).

W 2011 roku system MB-78EI został zmodernizowany i uzyskał nowe możliwości w zakresie dopuszczalnych gabarytów konstrukcji i innych rozwiązań konstrukcyjnych, opisanych tutaj.

W zakresie konstrukcji przeciwpożarowych istnieje możliwość montażu drzwi systemu MB-78EI w fasadach systemu MB-SR50 EI, z zachowaniem odporności ogniowej w klasach EI30 lub EI60.

System MB-78 EI posiada Aprobatę Techniczną ITB AT-15-6006/2011.

Z radością informujemy, że uzupełniliśmy certyfikat na wyroby ogniotrwałe Amberline o dymoszczelność. Poniżej prezentujemy certyfikat zgodności, który potwierdza klasę dymoszczelności: Sm, Sa wg PN-EN 13501-2+A1:2010.

Przypominamy, że w ofercie Amberline znajdują się drzwi przeciwpożarowe wewnętrzne i zewnętrzne systemu ALUPROF MB-78EI kształtowników aluminiowych z przekładką termiczną, rozwierane, jedno- i dwuskrzydłowe z przeszkleniem lub wypełnieniem nieprzeziernym.
Drzwi przeciwpożarowe Amberline przeznaczone są zarówno dla budownictwa mieszkaniowego, jak i użyteczności publicznej i przemysłowych.
Klasę odporności ogniowej od El15 do El60 potwierdza certyfikat zgodności ITB-2097/W.

Oferowane przez Amberline drzwi przeciwpożarowe to bezpieczeństwo, oszczędność, więcej rozwiązań technicznych i nowe możliwości w projektowaniu.

 

  Certyfikat_zgodnosci_ITB-Drzwi_przeciwpożarowe_systemu_ALUPROF_MB-78EI   302.870 kB
  MB78EI ulotka   233.536 kB

Galeria System MB 78 EI


Strona główna  Aktualności  Oferta  Kontakt    


PrimOkno 2012     |    projekt i wykonanie IMAGO